Денвер+
20,6х17,3Типовые проекты

1 / 13
Характеристики проекта
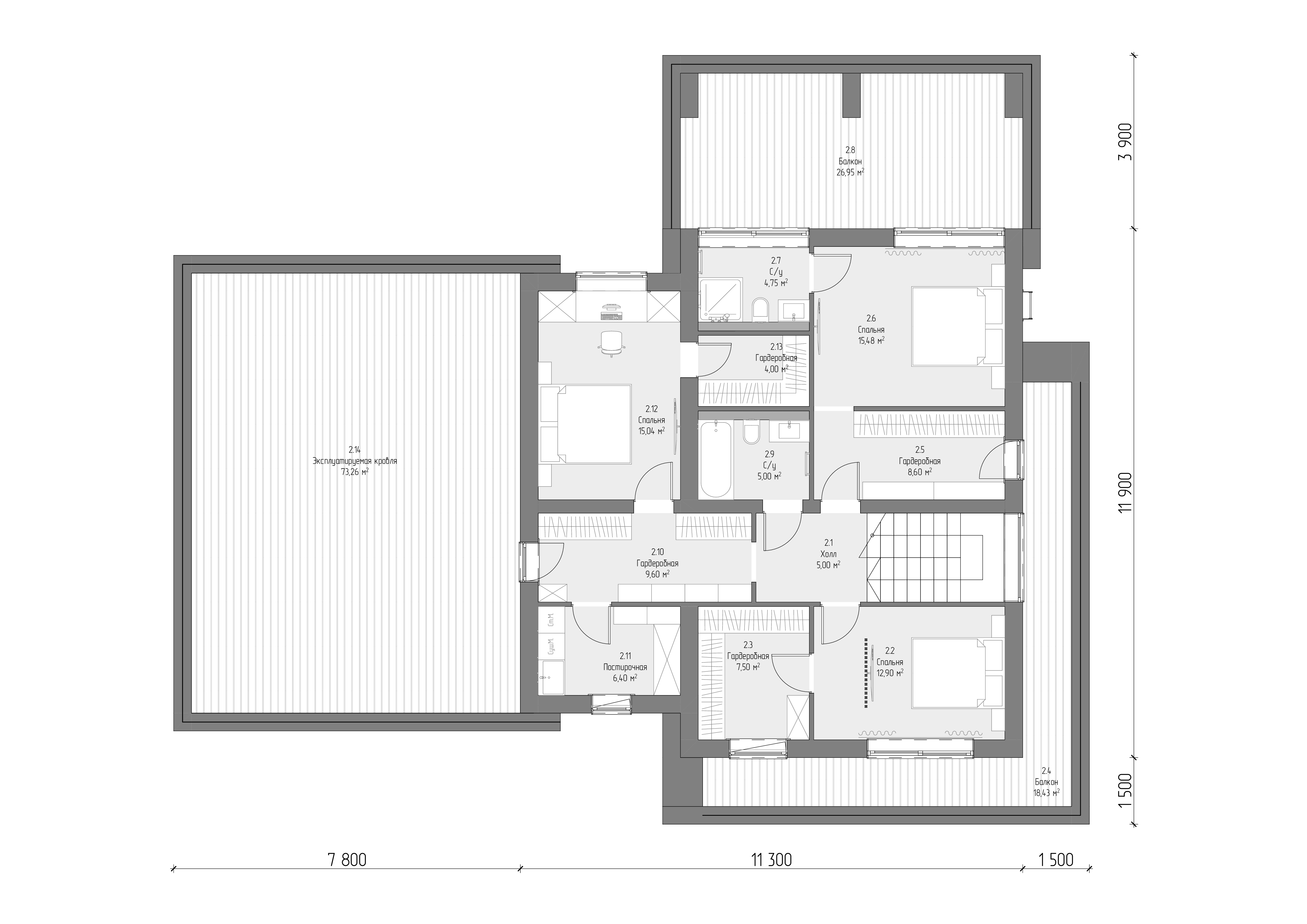
Общая площадь419.58 м²
Жилая площадь259.17 м²
Этажей2
Комнат4
Санузлов3
Габариты20,6х17,3
ГаражЕсть
Цокольный этажХайтек
Комплектация
Холодный контур
Генплан участка
- Посадка и разметка дома на участок;
- Архитектурный и конструктивные проекты дома, печатный альбом А3.
Фундамент
- Плита железобетонная монолитная;
- Вынос осей дома;
- Планировка пятна застройки на 1,2 метра шире границ дома — подготовка под отмостку;
- Укладка разделительного слоя из геотекстиля;
- Утрамбованное песчаное основание;
- Монтаж системы канализации Ø110 мм по точкам;
- Ввод водопроводной трубы ПНД Ø32 мм в дом;
- Закладные для питающего электрического кабеля и слаботочных систем;
- Армирование фундамента арматура (ГОСТ), диаметр согласно конструктивному проекту;
- Бетон В 25 (М350) с проверенного РБУ;
- Заливка автобетононасосом, вибрирование;
- Уход за бетоном;
- Проверка качества бетона склерометром.
Коробка
- Наружные стены: газобетонные блоки — 400 мм плотность — D500 / 300 мм D400;
- Внутренние несущие стены: газобетонные блоки — 250/300 мм плотность — D500;
- Перегородки: газобетонные блоки — 100/150 мм плотность — D500;
- Доработка геометрии блоков;
- Тонкошовная кладка на пенополиуретановый клей;
- Армирование стен двумя стержнями арматуры Ø12 мм;
- Внутренние и наружные перемычки заводского изготовления;
- Все бетонные элементы утеплены ЭППС.
Кровля
- Перекрытие - сборная железобетонная плита заводского изготовления/монолитное перекрытие;
- Направляемая пароизоляция “Технониколь”.
Организационные расходы
- Технический надзор;
- Видеонаблюдение;
- Раздельный сбор и вывоз мусора;
- Установка бытовки.
Теплый контур
Генплан участка
- Посадка и разметка дома на участок;
- Архитектурный и конструктивные проекты дома, печатный альбом А3.
Фундамент
- Плита железобетонная монолитная;
- Вынос осей дома;
- Планировка пятна застройки на 1,2 метра шире границ дома;
- Укладка разделительного слоя из геотекстиля;
- Утрамбованное песчаное основание;
- Гидроизоляционная мембрана PLANTER standart;
- Монтаж системы канализации Ø110 мм по точкам;
- Ввод водопроводной трубы ПНД Ø32 мм в дом;
- Закладные для питающего электрического кабеля и слаботочных систем;
- Армирование фундамента арматура (ГОСТ);
- Бетон В 25 (М350) с проверенного РБУ;
- Заливка автобетононасосом, вибрирование;
- Уход за бетоном, проверка склерометром.
Коробка
- Утепление и гидроизоляция кровли:
- Мембрана кровельная ПВХ “Технониколь”;
- Разделительный, фильтрационный и защитный слой геотекстиль “Технониколь”;
- Полусухая стяжка с разуклонкой;
- Утепление “Технониколь ХPS Carbon” 200мм;
- Пароизоляция Биполь ХПП;
- Воронки парапетные "Технониколь";
- Греющий кабель для обогрева парапетных воронок и водосточной системы;
- Аэраторы кровельные.
- Наружные стены: газобетонные блоки (400мм D500 / 300мм D400);
- Внутренние несущие стены: газобетонные блоки (250/300мм D500);
- Перегородки: газобетонные блоки (100/150мм D500);
- Доработка геометрии блоков, тонкошовная кладка;
- Армирование стен, перемычки, утепление ЭППС.
Кровля
- Перекрытие - сборная железобетонная плита / монолитное;
- Направляемая пароизоляция “Технониколь”.
Окна
- Профиль согласно Архитектурному проекту.
Организационные расходы
- Технический надзор, видеонаблюдение;
- Раздельный сбор и вывоз мусора;
- Установка бытовки;
- Регистрация дома.
Индивидуальное проектирование
Архитектурный проект в подарок
Строительство в рассрочку
Выгодные условия под 0%
Похожие проекты
Смотреть варианты в каталоге
Обсудить проект
Оставьте номер, и архитектор перезвонит вам для консультации по дому Денвер+.
Нажимаю кнопку, вы соглашаетесь с политикой обработки персональных данных
ID объекта: 18
Предложение
Рассрочка 0%
Стройте дом мечты сейчас, а платите — постепенно и без переплат.













