Люмен 2
Стоимость строительства
от 25 056 350 ₽

Характеристики проекта
Описание
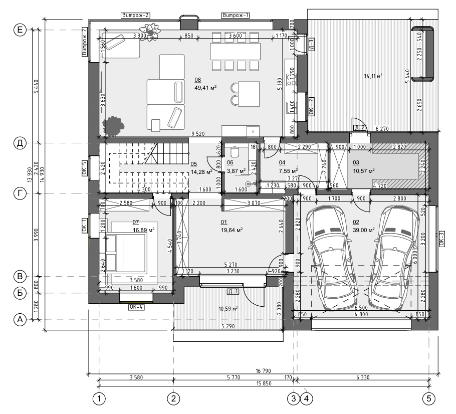
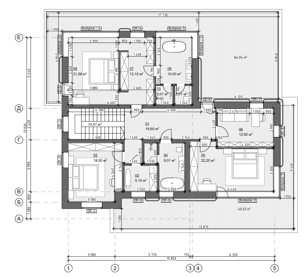
Проект «Люмен» — это воплощение динамичного хайтек-стиля, где архитектура следует за светом. Его название, происходящее от единицы измерения светового потока, идеально отражает суть дома: обилие естественного света, энергичные линии и яркий, запоминающийся образ. Этот двухэтажный дом площадью 373.8 м² предлагает исключительно эффективную и комфортную планировку. Просторная жилая площадь 240.89 м² и четыре светлые комнаты создают идеальные условия для жизни. Встроенный гараж и три санузла подчеркивают продуманность каждого метра и удобство для современной семьи.
Индивидуальное проектирование
Архитектурный проект в подарок
Строительство в рассрочку
Выгодные условия под 0%
Похожие проекты
Смотреть варианты в каталоге
Обсудить проект
Оставьте номер, и архитектор перезвонит вам для консультации по дому Люмен 2.
Нажимаю кнопку, вы соглашаетесь с политикой обработки персональных данных
ID объекта: 2









