Вивьен
Стоимость строительства
от 17 300 000 ₽

Характеристики проекта
Описание
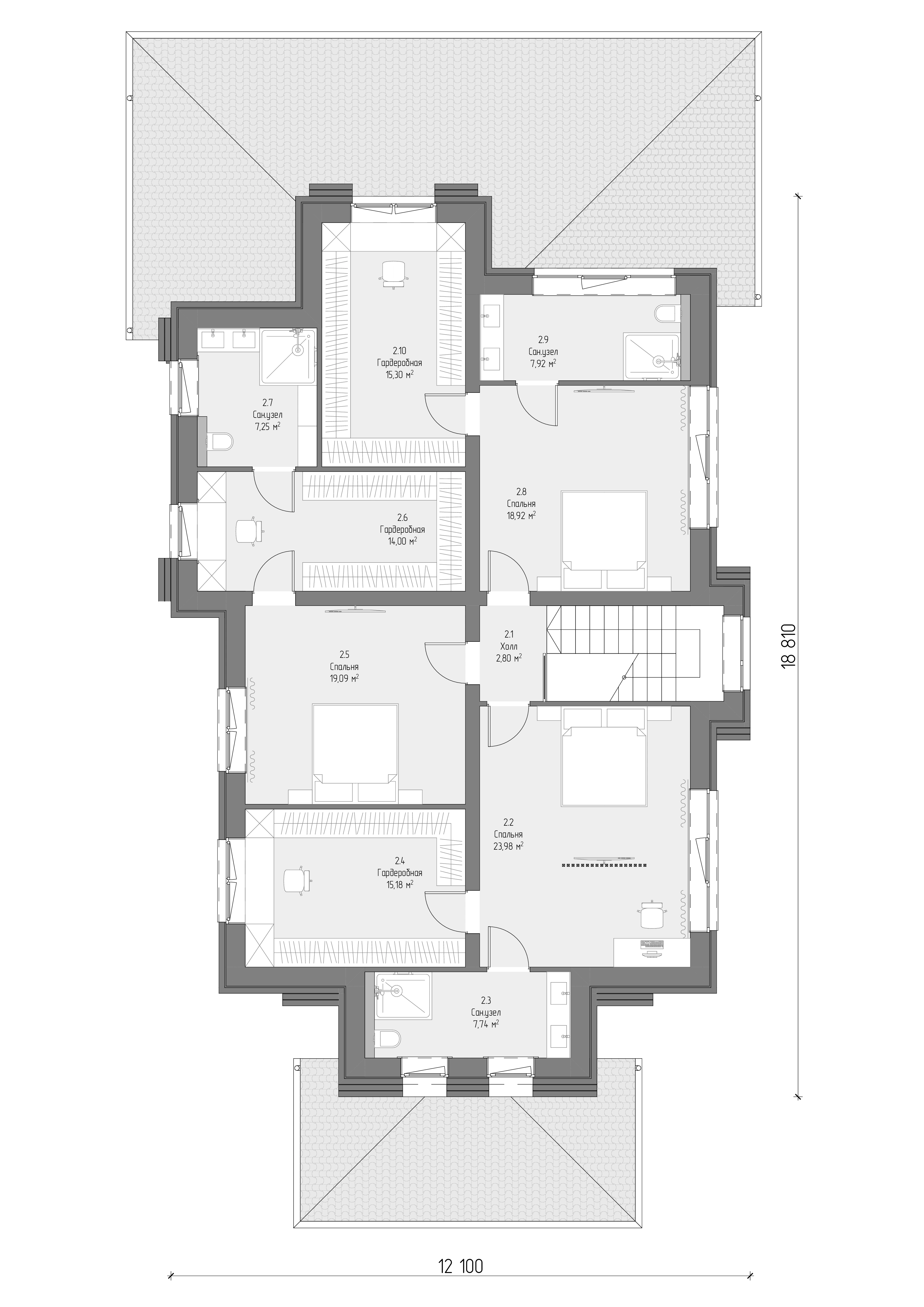
Индивидуальный проект «Вивьен» — это дань уважения timeless-архитектуре Фрэнка Ллойда Райта, переосмысленная в рамках современного подхода. Дом воплощает философию «органической архитектуры», где главным соавтором выступает сама природа. Его характерные горизонтальные линии, массивные формы и сложные карнизы создают ощущение незыблемой стабильности и гармонии с ландшафтом. При общей площади 315.44 м² проект предлагает невероятно просторную жилую зону 272.22 м², что свидетельствует о блестящей планировочной эффективности. Четыре комнаты и целых пять санузлов обеспечивают высочайший уровень комфорта и приватности для семьи, ценящей уют и функциональность.
Индивидуальное проектирование
Архитектурный проект в подарок
Строительство в рассрочку
Выгодные условия под 0%
Похожие проекты
Смотреть варианты в каталоге
Обсудить проект
Оставьте номер, и архитектор перезвонит вам для консультации по дому Вивьен.
Нажимаю кнопку, вы соглашаетесь с политикой обработки персональных данных
ID объекта: 56













