Бостон
Стоимость строительства
от 49 501 650 ₽

Характеристики проекта
Описание
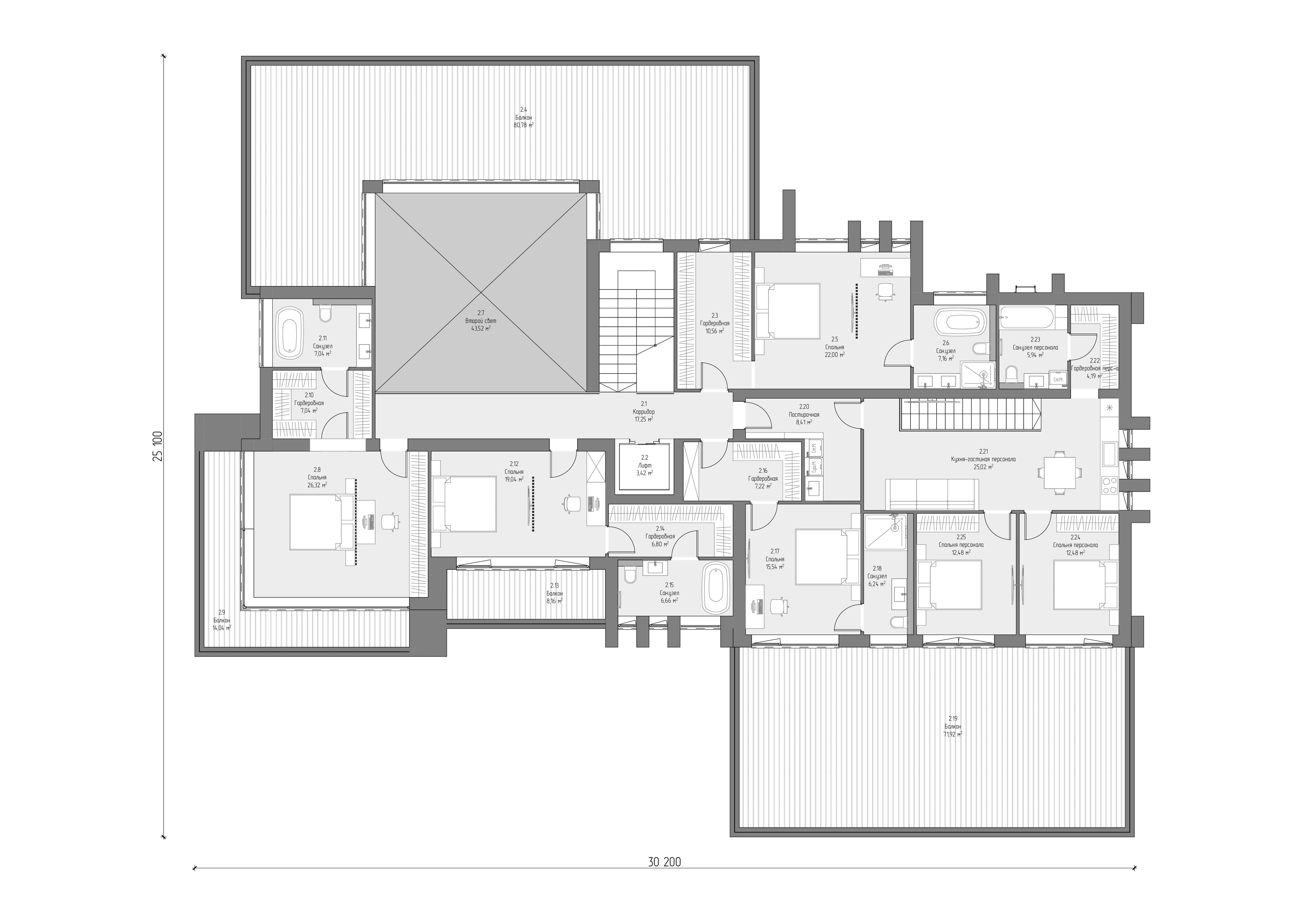
Индивидуальный проект «Бостон» — это масштабная работа в жанре современной архитектуры, ориентированная на создание уникальной резиденции для самой взыскательной аудитории. Проект демонстрирует бескомпромиссный подход к дизайну, технологиям и комфорту, устанавливая новые стандарты загородной жизни. С впечатляющей общей площадью 900.03 м² и жилым пространством 567.29 м², «Бостон» предлагает беспрецедентный уровень свободы и приватности. Девять комнат и семь санузлов позволяют с легкостью разместить большую семью, организовать гостевые апартаменты, кабинеты, библиотеки и зоны отдыха, отвечающие самым высоким требованиям.
Индивидуальное проектирование
Архитектурный проект в подарок
Строительство в рассрочку
Выгодные условия под 0%
Похожие проекты
Смотреть варианты в каталоге
Обсудить проект
Оставьте номер, и архитектор перезвонит вам для консультации по дому Бостон.
Нажимаю кнопку, вы соглашаетесь с политикой обработки персональных данных
ID объекта: 57















